Lots for Sale in Waunakee, WI

Kilkenny Farms West

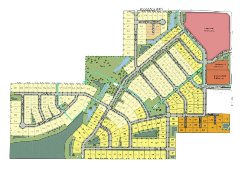
Welcome to Kilkenny Farms West where you will enjoy the neighborhood’s rolling landscape. Featuring southwestern views of the countryside, right from the heart of Waunakee. Located within walking distance to Waunakee’s schools, as well as downtown Waunakee. Enjoy two parks with a trail system making connections throughout the neighborhood, as well as connecting trails for the new Intermediate and Elementary schools. A mix of commercial and residential provides the convenience of shops and restaurants within a friendly neighborhood setting.

SUBDIVISION LOTS AVAILABLE

Contact Us at 262-746-2000 for Additional Lot Availability

Driving Directions to Kilkenny Farms West

Interested in a New Lot?

Contact one of our new construction professionals for more details or to schedule an appointment.

Get In Touch

Scroll to Top

ONLY 3 LOTS REMAIN – IN REDFORD HILLS, SUSSEX

NO PAYMENTS DURING CONSTRUCTION WITH OUR LIMITED-TIME OFFER