Family-friendly, Functional Ranch

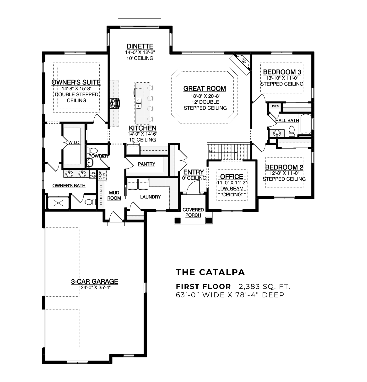
The Catalpa

Open Saturdays & Sundays From 12pm-4pm or by Appointment

Subdivision

Model Address

6101 S. Primrose Court
New Berlin, WI 53151

NuPath Homes logo
NuPath Ranch floor plan callout
The Catalpa at Thomson Hollow Exterior

Family-Friendly, Functional Ranch

NuPath Total Space icon
TOTAL SPACE

2,383

NuPath Bedrooms icon

BEDROOMS

3

NuPath Bathroom icon

BATHROOMS

2.5

NuPath Special Feature icon

SPECIAL FEATURE

Spacious Master Suite

NuPath Style icon

STYLE

Ranch

All of the features and amenities that homeowners love about The Cypress, with a few fun updates! Meet The Catalpa: an open-concept split ranch that’s designed for maximum functionality and perfect for families.

The Catalpa expands on its predecessor by adding 40 square feet of living space to its footprint. Like the original, this floor plan is designed with minimal hallways to make smart use of space. The kitchen features a large island and walk-in pantry, along with even more storage space than before. A three-panel sliding door off the dinette opens up to a rear patio. The separate laundry and mudroom maximize the functionality of this home, which families will love. The laundry now features a dropped desk area to make this space your personal command center. Plus, the mudroom has a built-in boot bench and drop zone for those “just walked in the door” moments. The redesigned private master suite includes a sumptuous, shareable master bath and plenty of closet space. Enjoy beautiful 10-foot ceilings throughout the main living spaces of this home. New exterior options open the door to making this home your own!

STANDARD NUPATH INCLUSIONS

Each NuPath home comes with a series of standard inclusions you would expect to find in a new home. Upgrade or downgrade as needed to choose the amenities and designs that are most important to you.

  • Versatile approach and customization
  • Design and 3D architecture
  • High-touch service experience
  • Skilled team, contractor, and supplier network
  • Design consultation and plan customization
  • Budget and timeline planning
  • Building site consultation
  • Focus on Energy Certified New Home

DIRECTIONS TO THE CYPRESS II

From I-43, take exit 57 and head south on S Moorland Road. Turn east on W Grange Avenue, then turn south on S Sunny Slope Road. Turn west on W Osprey Way. Finally, head south on S Primrose Court. Home will be to the right.

Interested in Learning More?

Contact one of our team members to learn more about our model homes!

Get In Touch

Scroll to Top

ONLY 3 LOTS REMAIN – IN REDFORD HILLS, SUSSEX

NO PAYMENTS DURING CONSTRUCTION WITH OUR LIMITED-TIME OFFER